WORK
ABOUT
CONTACT
WORK
ABOUT
CONTACT
DESROSIER ARCHITECTURE PLLC
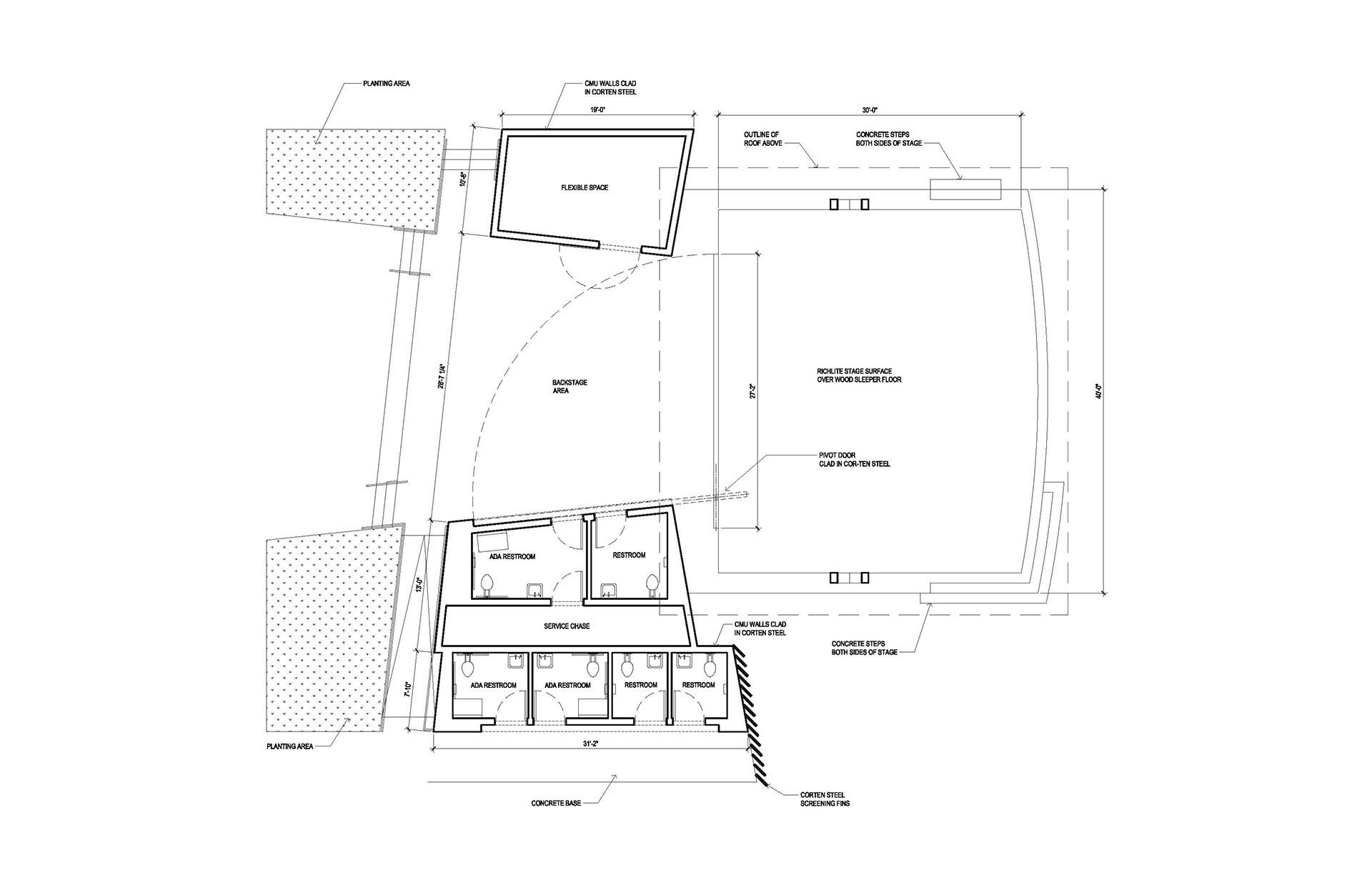
Volunteer Park Amphitheater
Schematic design of an outdoor pavilion at Seattle's beloved Volunteer Park. Work completed while at ORA.

You may also like

Seattle Department of Construction & Inspections
2021
Woodinville Residence
2021
Graphic Design & Branding
2021
Alki Homestead & Il Nido Patio Remodel
2021
Mercer Island Addition | Under Construction
2021
Sammamish Eyecare Associates Vision Clinic
2021
NW 57 Multifamily
2021
Renton Interior Remodel
2021
Sea-Tac Art Murals
2021
Office of Planning & Community Development
2021
↑Back to Top
DesRosier Architecture, PLLC | 1122 East Pike Street #822 Seattle, WA 98122 | megannedesrosier@gmail.com | (425) 638-3306